2,424 Sq. Ft. – 4 Bedroom, 3 Bath Single-Family Home LA County Pre-Approved Standard Plan for Fire Rebuilds

DESIGNED FOR MODERN FAMILY LIVING
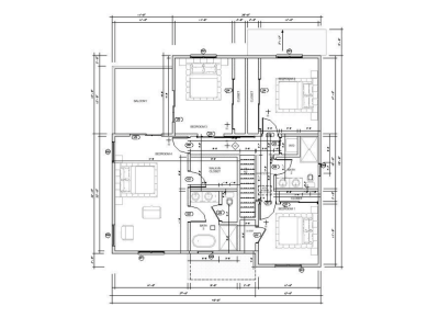
Key Features: 2-Story Home, 4 Bedrooms, 3 Bathrooms, Attached Garage
This two-story single-family home is designed for comfort, flexibility, and long-term use. The layout provides 2,424 square feet of living space, supported by a 540 square foot attached tandem two-car garage and a 63 square foot porch. The overall design works well on narrow lots and rebuild properties while maintaining a balanced and livable interior.
The architectural style is intended to blend naturally with the surrounding LA County neighborhoods. Interior planning prioritizes everyday function, with kitchen windows facing the backyard for natural light and access. A small second-floor deck adds flexibility for bedroom use, while the raised floor foundation allows easier maintenance, future upgrades, and reduced grading needs.
Built for Strength, Efficiency, and Buildability
The structural approach for this home focuses on practical construction and cost control. The design uses proven framing strategies that support efficient building without unnecessary complexity. Every element is planned to be straightforward for contractors and owner-builders alike.
The system is adapted from a proven real-world model, based on a custom home built on Moune Curve Ave following the Eaton Fire rebuild. All plans are prepared by Complete Package Drafting, Inc., with an emphasis on code compliance, clarity, and realistic construction methods that support timely and affordable project delivery.

Complete Package Drafting makes the design and approval process easy and straightforward, so you get the plans and building permit approvals you need to transform your home, business, or multi-family property. Our team provides you one set of drawings to streamline the approval process, all while making sure they’re compliant with the latest building codes.
Complete Package Drafting is committed to getting the job Complete in an affordable, timely manner!
Contact Us Today!






