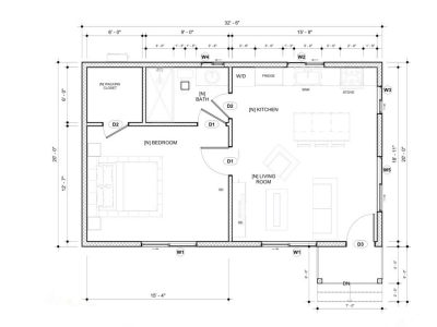
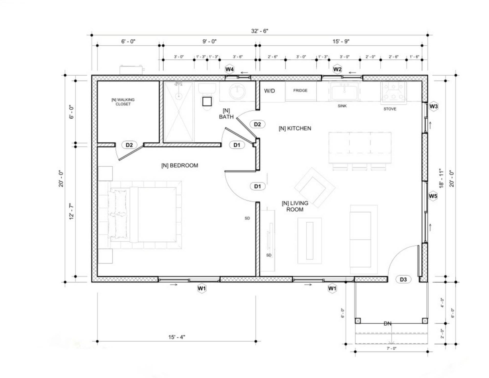
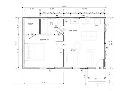
650 Sq. Ft. – 1Bedroom, 1Bath LA County Pre-Approved Standard Plan for Fire Rebuilds
DESIGNED FOR SIMPLE CONSTRUCTION
Key Features: 1-Story ADU, 1 Bedroom, 1 Bathroom, 650 Sq. Ft.
This ADU is inspired by our most popular single-story layout, refined from over 150 ADU designs created by Complete Package Drafting, Inc. across Southern California. Every detail reflects our years of experience and our focus on homes that feel welcoming, functional, and easy to live in.
The design follows the trusted Wood Frame Prescriptive Provisions (WFPP), Type V construction. This method is one of the most common and builder-friendly options used locally. Designed with owner-builders in mind, this ADU is practical, affordable, and simple to build. The plan package includes architectural, structural, and basic MEP plans, giving you what you need to move smoothly through permitting and into construction.
Why Choose Complete Package Drafting Pre-Approved ADU Plans
Complete Package Drafting, Inc. pre-approved ADU plans are created with
real-world building in mind. Our designs come from years of working
directly with local jurisdictions, builders, and homeowners across Southern California. That experience allows us to produce plans that are clear, accurate, and ready to move through permitting with fewer issues.
Each pre-approved plan is carefully developed to meet current building and
zoning requirements while staying practical and cost-efficient. We focus on
layouts that make sense, construction methods that builders trust, and details that help avoid delays during plan check and construction.
Complete Package Drafting makes the design and approval process easy and straightforward, so you get the plans and building permit approvals you need to transform your home, business, or multi-family property. Our team provides you one set of drawings to streamline the approval process, all while making sure they’re compliant with the latest building codes.
Complete Package Drafting is committed to getting the job Complete in an affordable, timely manner!
Contact Us Today!







