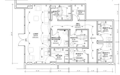
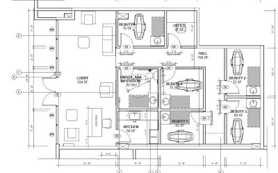
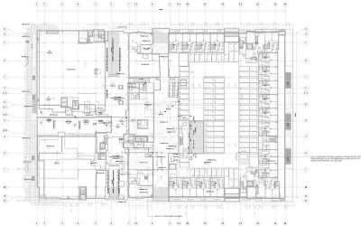
Tenant Improvement Plans and Blueprints
You have leased a retail space, and you’re eager to put it to use. But the specific needs of your business, and the many regulations that come with retail space, demand an expert team of designers. You can’t use the space until you have a tenant improvement permit, but we’re here to help. Your retail space might just be a bare shell, and you will need walls, offices, and restrooms. Maybe those basics are already there, and you need someone to ensure that you’re meeting the latest regulations. In mixed-use developments, there are additional regulations that ensure that construction will not interfere with residents or other businesses. The TI permit will detail all the architectural, MEP, and disability compliance changes from the space’s previous use. Discover how Complete Package Drafting can help with your tenant improvement project.
Understanding Tenant Improvement: Enhancing Spaces, Enriching Experiences
“Tenant improvement” refers to the process of customizing and modifying a leased space to better suit the needs and preferences of the occupant and meeting regulatory requirements. Though improvement does not involve building new structures, it can still be a complicated process. For that reason, such projects in Southern California require building permits before construction can begin, and each project will require a variety of engineers and contractors with a mix of specialties.
At Complete Package Drafting, we recognize the pivotal role that tenant improvement plays in optimizing the value, utility, and livability of a space. Our team is excited to help you with your projects, big and small. Call us today and tell us your needs. We are the industry experts in commercial renovation design, plans, and blueprint drafting.
Our Tenant Improvement Services
As leading engineers in the industry, we offer a comprehensive range of services that cater to diverse needs. Whether you’re looking to completely remodel a space or just need to fix up one room, our expertise covers it all.
Space Assessment and Planning
Our first step is to understand your unique requirements. We thoroughly assess the existing space, considering factors like layout, lighting, utility access, and more. This assessment sets the foundation for a well-planned strategy. Tell us what you need, and we’ll work our hardest to meet your goals.
Custom Design and Visualization
Our team of skilled engineers and designers translates your ideas into stunning visual representations. Using the latest technology, we create a detailed blueprint where every line and figure is made with your consideration and approval. This way, you can envision the final result before construction even begins.
Functional Upgrades
From HVAC and electrical systems to plumbing and structural adjustments, we implement functional upgrades that align with your needs. With us, your space will be as efficient and vital as possible.
Aesthetic Enhancements
A retail space won’t attract much if it isn’t beautiful. Functionality is crucial, but aesthetics play a vital role in occupant satisfaction. Our designers incorporate design elements that reflect your identity and resonate with your people.
Project Management
We take the stress out of the process by managing the entire project from start to finish. Our team ensures coordination of contractors, timelines, and budgets, delivering results that exceed expectations.
ADA Compliance
The regulations to guarantee access for disabled Americans can be difficult to sort through. Thankfully, our experts can handle ADA compliance, making sure your leased space is accessible to all.
MEP Plans
Mechanical, electrical, and plumbing plans require a team of specially trained professionals to ensure safety and legal compliance. But with Complete Package Drafting, there’s no need to worry, as our plans will meet all regulations (and your requirements).
Why Choose Complete Package Drafting for Your Project?
Every retail space needs occasional revitalization. By hiring us to enact a tenant improvement, you’ll ensure that the leased space will meet the latest standards, regulations, and fashions. And with a new and modern retail space to show, you won’t have to wait long before prospective renters come to call, and you’ll be able to justifiably ask for a bigger price.
-
Expertise and Experience
With years of experience in construction drafting, our team brings a wealth of knowledge to every project. We have completed almost innumerable projects, leaving a trail of satisfied clients. -
Speedy Work
We know that your time is valuable. We always work our fastest to produce the plans and designs to meet your needs, ensuring that your leased space will be ready for use as soon as possible. -
Tailored Solutions
We understand that every job is unique. A one-size-fits-all approach simply will not do. Instead, we tailor our designs and strategies to meet each client’s needs and aspirations.
-
Collaborative Approach
You are at the center of the project, and your input is invaluable to us. We believe in a collaborative design process that ensures your vision is at the forefront of the project. Tell us your ideas and concerns, and we’ll work tirelessly to achieve remarkable results. -
Transparency and Communication
We prioritize transparent communication at every stage of the project. You'll receive regular updates on progress, timelines, and any potential adjustments to ensure you're always in the loop. -
Attention to Detail
From the grand concept to the tiniest detail, we pay meticulous attention to every aspect of the design and construction. This approach guarantees a flawless outcome that leaves no room for compromise.
Choose Complete Package Drafting. Contact Us Today!
At Complete Package Drafting, tenant improvement design and planning is not just a service; it’s an opportunity to transform spaces into thriving retail environments. Our innovative designs, client-centric approach, and commitment to excellence set us apart as leaders in the world of construction. Whether you’re embarking on a small-scale renovation or a full-scale transformation, our team is ready to turn your vision into reality.
Get in touch with us today to discuss your project. Let’s collaborate to unlock the true potential of your space. Your journey to a reimagined space starts here.
Navigating the world of tenant improvement can be complex, but with Complete Package Drafting, it becomes a thrilling transformative journey. Our expert engineers and designers are dedicated to delivering tailored solutions that merge functionality, aesthetics, and your unique identity. Elevate your leased space’s potential—contact us now to embark on a project that will set a new standard in excellence.





